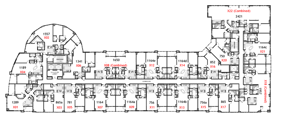
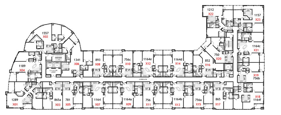
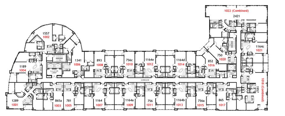
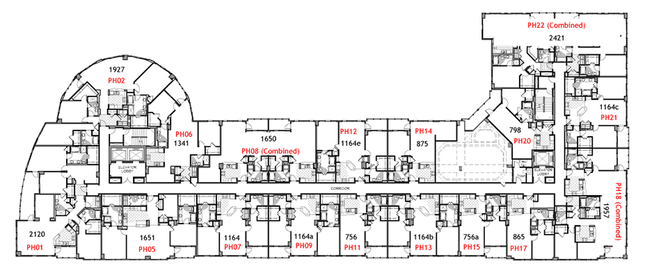
Here you can browse floorplans either with the building map above or with the lists to the right.

On the building map, the approximate square footage of a unit is shown in black and the unit number in red. Each floorplan is also referenced to the right by its approximate square footage.

Some models will have slightly different layouts depending on their location. The alternate layouts are noted by a letter next to the square footage (such as 865a).

Featured Listings

One Bedroom Condo

One Bedroom

Two Bedroom Condo

Two Bedroom

Three Bedroom Condo

Three Bedroom